HAY
compact welfare system
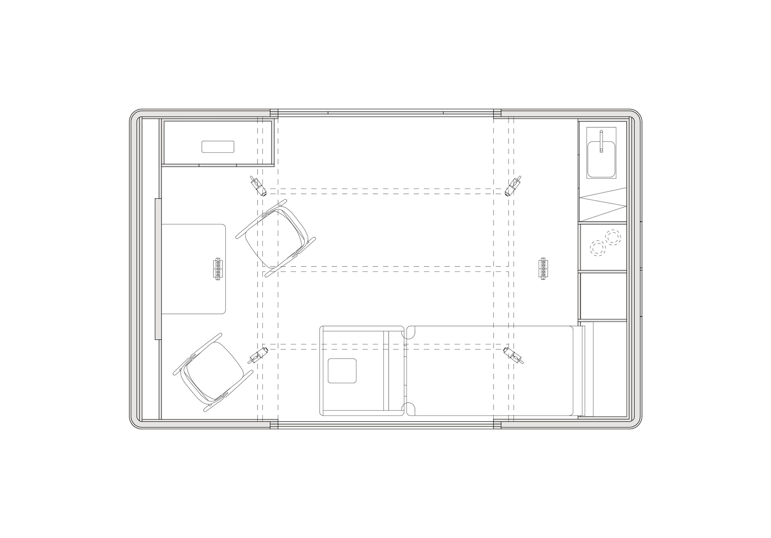
HAY is a healthcare pod designed to host one-to-one services: visits, consultancy activities and medical support held by professionals such as doctors, physiotherapists and psychologists. The space can also be accessed by single users for recreational sessions that can be done in autonomy and completely customizable.
Transportability and transformability are the pillars of the project; the interiors follow the functions, in order to guarantee different scenarios. HAY can be easily closed and moved to any location, offering its services to a wide range of users.
DECEMBER 2022
GEORGE PATRU CARLOTTA DEL PRATO CARLOTTA SCHIAVONE ELISA BONOPERA SERENA BUCCHI
Year
Designers

